A 313 sq ft A-frame tiny house featuring dramatic vaulted ceilings, efficient floor plan with loft space, and modern amenities. Perfect for minimalist living or weekend retreat.
Photorealistic visualization of the completed A-frame structure.

Efficient two-level layout maximizing vertical space with main floor and loft.


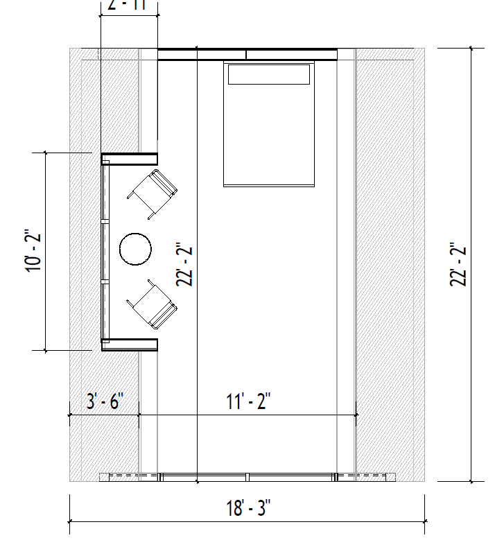
Cozy loft area (3'-6" x 22'-2") provides additional sleeping or storage space, accessed via ladder or compact staircase. Perfect for guests or a reading nook.
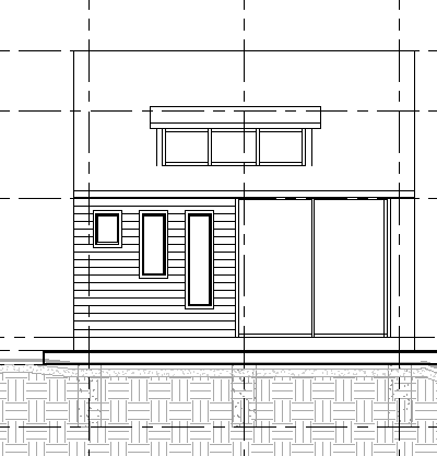
Architectural elevations showcasing the distinctive A-frame design.

Classic A-frame facade with horizontal siding, entry door, windows for natural light, and distinctive clerestory windows at the peak.

Sectional view revealing the dramatic interior volume created by the A-frame structure, showing the exposed roof framing and loft level relationship to main floor.
Classic A-frame architecture provides dramatic interior volume while maintaining a compact footprint.
Soaring ceilings create an open, airy feeling far beyond the 313 square foot footprint.
Additional loft area provides versatile space for sleeping, storage, or a cozy reading nook.
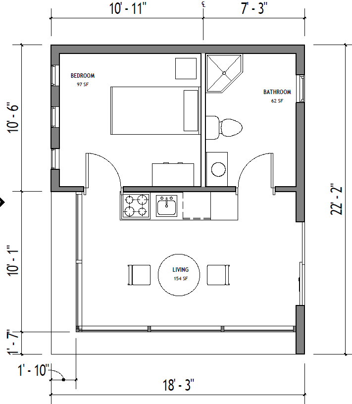
Complete kitchen with stove and sink, plus full 62 SF bathroom with all necessary fixtures.
Smart floor plan separates living (154 SF) and sleeping (97 SF) areas for maximum functionality.
Strategic window placement and clerestory windows flood the interior with natural daylight.
Get a custom tiny home report and consultation for your property. Let's create your perfect A-frame retreat!